OFFICE - 13RE1

The HQ Mini - 13' Office Trailer

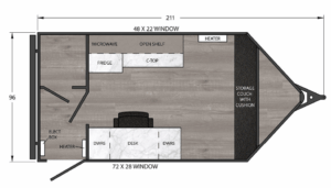
Trailer Measurements

Style

Framing

Box Length

Ext. Width

Int. Height

V Nose

ALUMINUM

13′

8.5′

78″

* Disclaimer: Gallery pictures may show options which are upgrades from the standard model.

Trailer Weights

GVWR

Dry

7,415

3,145

Axle Specification

Axle Rating

GAWR

3,500 lbs

7,000 lbs

Tire Specification

Wheel

Tire

16″ Aluminum

235/80R16

Our uniquely designed 13 foot office trailer with a Rear Entrance is made for your needs.

We pride ourselves on precision design and expertly crafted mobile office solutions that are fully equipped with industry leading technology such as single sheet fiberglass, providing a sleek, clean look without any panel lines.

Rubber coin flooring in mud areas and linoleum floors along with solid drawer fronts and contemporary designed cabinets provide a professional look that cleans easily allowing you to maintain a professional looking office space. We also provide Hi-def televisions and wi-fi and sofas that provide the comforts of home while maintaining your high standards of office productivity.

Office Trailer 13RE1 Gallery