OFFICE – 20RE3
Trailer Measurements
Style
Wall Structure
Box Length
Ext. Length
Ext. Width
Int. Height
V Nose
ALUMINUM
21′
24′
100″
84″
* Disclaimer: Gallery pictures may show options which are upgrades from the standard model.
Trailer Weights
GVWR
Dry
11,210 lbs
5,620 lbs
Axle Specification
Axle Rating
GAWR
5,200 lbs
10,400 lbs
Tire Specification
Wheel
Tire
16″ Aluminum
235/80R16
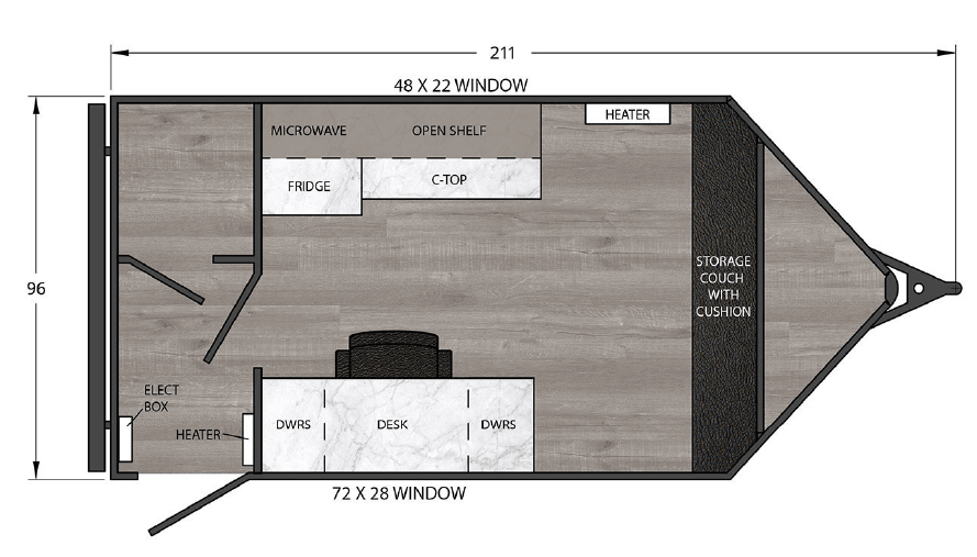
Our uniquely designed 20 foot trailer with a rear desk and dual axle is made for your mobile command needs. We’ll transform your imagination into reality.
We pride ourselves on precision design and expertly crafted mobile office solutions that are fully equipped with industry leading technology such as single sheet fiberglass, providing a sleek, clean look without any panel lines.
With two desks, plenty of counter tops and filing cabinets, working efficiently will be a common place for you. A microwave and Hi-def TVs will also help you be productive.
Need to rest? Our Jiffy sofa is built with you in mind.
Rubber coin flooring in mud areas and linoleum floors along with solid drawer fronts and contemporary designed cabinets provide a professional look that cleans easily allowing you to maintain a professional looking office space. We also provide Hi-def televisions and wi-fi and sofas that provide the comforts of home while maintaining your high standards of office productivity.
You dream it. We build it. Elkhart Trailer Company.






































